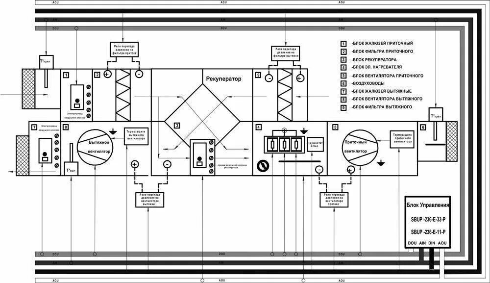
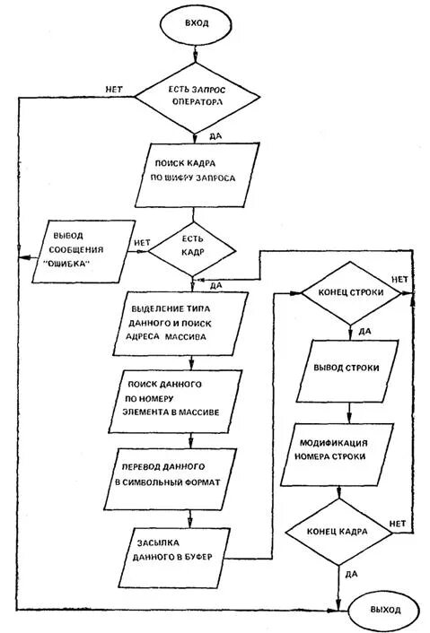
Алгоритм вентиляции