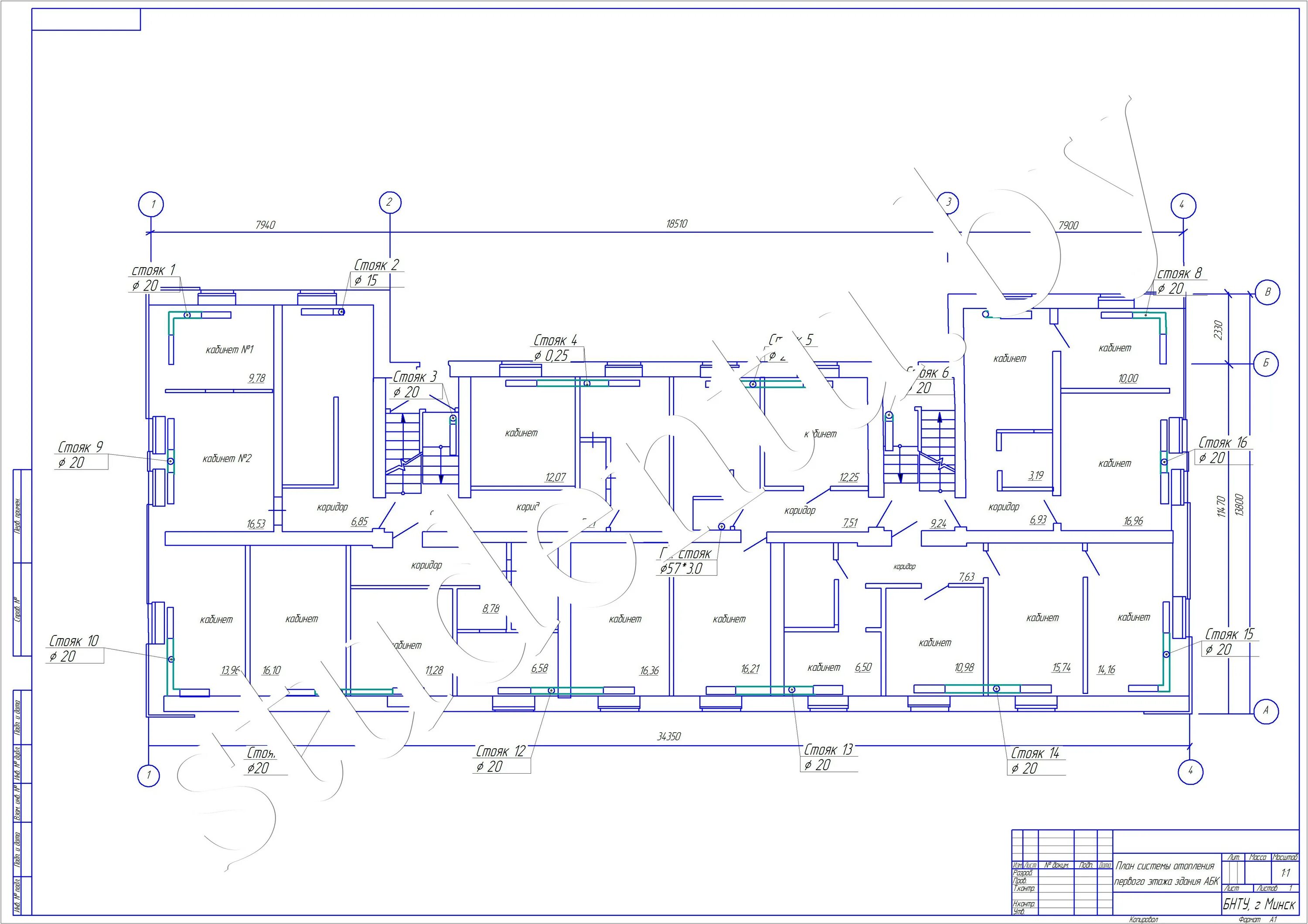
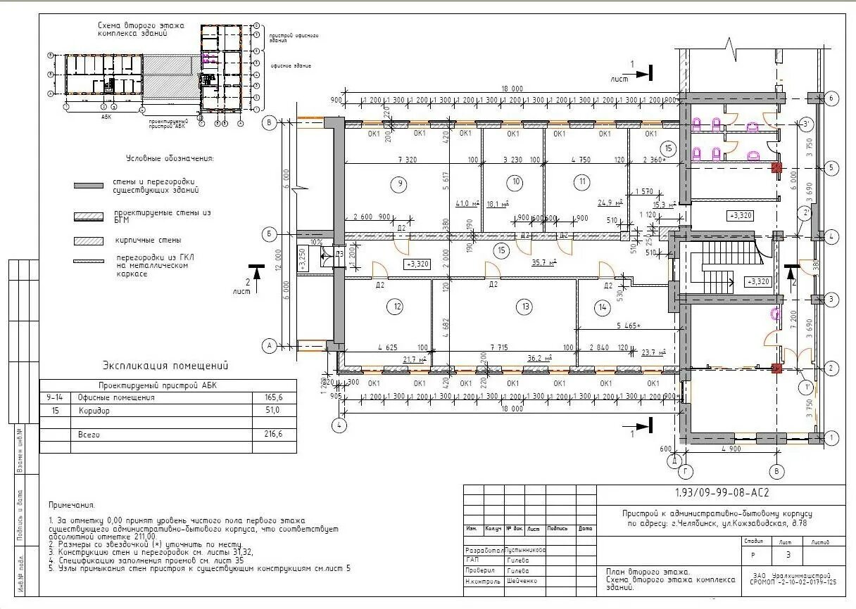
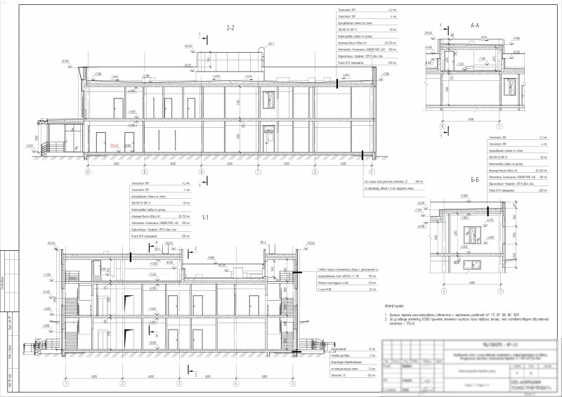
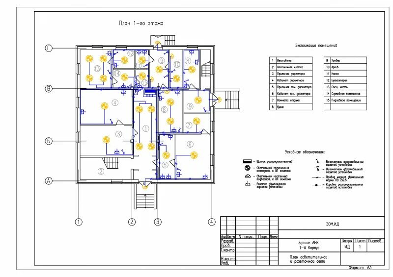
Абк расшифровка здания