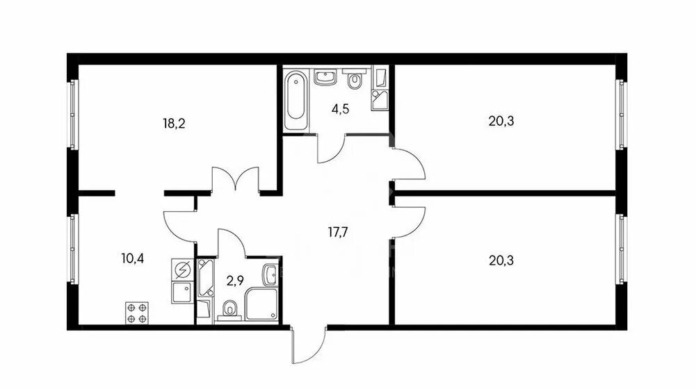
72 квадратных метра